最近一直忙于处理解决公司各项目问题事宜,未能及时更新,抱歉了。
分享继续
#1可控硅调光智能照明系统
相关内容请查阅上期文章:【微分享】建筑智能照明解决方案:可控硅调光、DALI数字调光还是DMX512调光?(上)
#2DALI数字调光系统
DALI调光系统起源于欧洲,这几年在国内已经非常成熟且普遍运用的一种智能照明解决方案。
1、什么是DALI调光系统
DALI是“Digital(数字) Addressable(可寻找地址) LightingInterface(照明接口)字母的缩写。DALI调光系统最大的特点是每个灯具都有独立的地址,通过DALI系统软件可以实现对每个灯具进行精准控制;因每个灯具具有独立地址特性,可实现对同一强电回路灯具、不同强电回路灯具或各回路中的灯具组合进行寻址实现单独控制、任意分组控制,调控具有非常大的灵活性。用户可根据需求,随心所欲地设计并调节相应的照明方案。
打个类似比方这就类似一个学校校长(DALI软件系统)可以从学校内任意一个班级及班级内任意学生(DALI灯具)组成各种专业团队去参加学校间的各类体育比赛一样,团队组合非常灵活;
2、DALI系统调光原理



DALI调光系统具有可寻址性,每个灯具需同步敷设弱电线,但因dali灯具无法编码,DALI系统在每个末端灯具需配置一个驱动器,通过对驱动器编码实现对每个灯具可寻址功能。
3、DALI系统主要由哪些部件组成
DAII系统主要由DALI灯具、外置调光驱动器或DALI灯具(内置调光驱动器)、调光控制网关、线路耦合器、DALI智能主机、系统电源、软件系统;同样系统还有照明传感器、调光面板等;
DALI灯具形式多样,可以为射灯、洗墙灯、线条灯、灯带等种类。有些灯具可以内置调光驱动器、有的通过外置调光驱动器;
类似如下:
<<< 左右滑动见更多 >>>
外置调光驱动器:调光驱动器是DALI系统中重要执行器设备,负责给DALI灯具提供强电电源的供给、接受调光系统控制指令的重要设备。
<<< 左右滑动见更多 >>>
调光控制网关:DALI系统中的重要设备,起到承上启下的作用,接受并传达调光系统的指令,类似楼宇对讲系统(BA)的现场控制器(DDC),为确保DALI系统的稳定性,通过网关接入不超过64个DALI灯具为支线作为最小拓扑单元使用。类似消防火灾报警系统一个回路不能超过200个点要求一样。


(产品不同,有的调光控制器可接受消防切非信号,消防时强制关闭所有DALI灯具供电)
线路耦合器:DALI系统通过耦合器将数个网关组成一个大的拓扑系统。

DALI智能主机:DALI系统的CPU,所有的逻辑控制程序储存的设备,类似电脑主机,所有程序的存储的硬件设备;
软件系统:DALI系统程序软件,方便使用人员可视化操作、控制;与可控硅调光系统一样通过显示屏可监测每个DALI灯具的状态、设置调光场景,随着互联网的普及应用,主机接入互联网,可以通过手机app,或移动Ipad等实时控制、显示DALI调光系统。
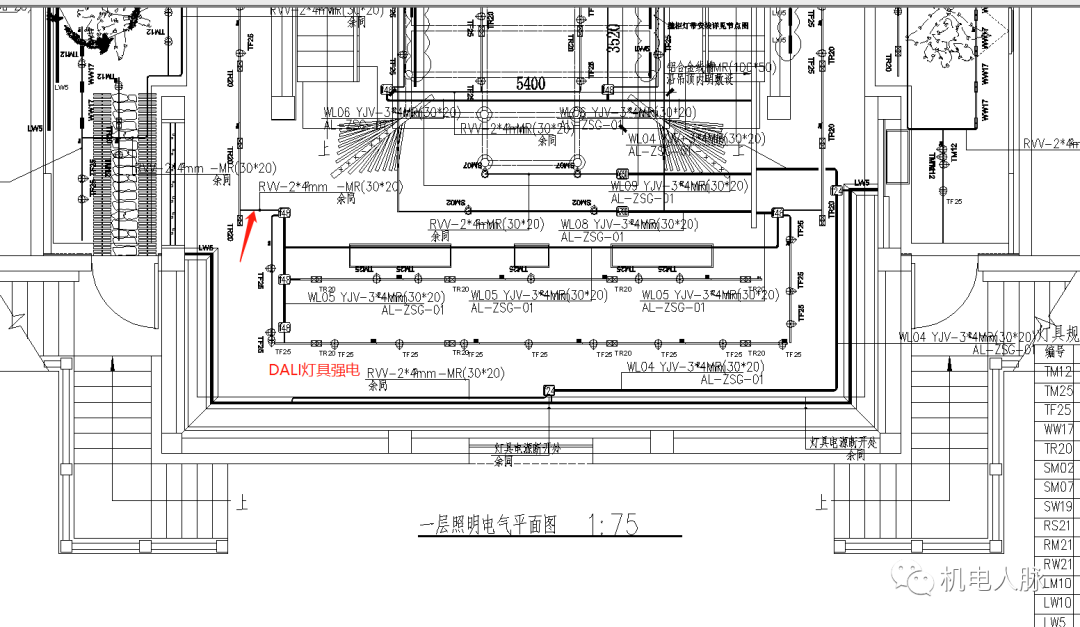
4、工程实际设计图纸
主流设计
常规设计,现在不建议采用与可控硅强电系统图对比,灯具出线回路多了DALI信号线;
平面弱电平面图
平面强电平面图5、工程实物照片
抱歉:因工程还没到现场施工阶段,实物图片暂时未拍摄,后期工程施工阶段,再补充实际施工图片、完成后的灯光效果等。
6、DALI调光系统控制基本逻辑
DALI调光系统与可控制硅调光系统从强电系统图看,看似DALI调光系统的调光控制网关出线只多一个控制信号弱电,但是控制逻辑发生了很大的变化;可控硅调光控制器每个出线回路作为最小控制单元,每个回路供电由可控硅调光系统给指令到调光控制器实现每个回路所有灯具的供电、断电、电压变化等等,实现每个回路所有灯具一起开关、调光、调色。而DALI调光系统的调光驱动网关的每个出线回路强电为常供电,DALI灯具的开、关、调光、变色等等指令由DALI调光系统通过调光驱动网关给到DALI灯光驱动器,由灯具驱动器控制DALI灯具。即DALI调光系统最小调光单元是每个灯具,可控硅调光系统最小调光单元是一个回路(该回路包含很多灯具)
7、DALI系统优缺点
优势:通过每个灯具的驱动器编码,类似于每个灯具具有可寻址的唯一地址,DALI灯光控制系统把可控硅调光系统每个回路作为最小控制单元升级为每个灯具作为最小控制单位;灯光控制更灵活,可实现跨回路灯光;灯光控制场景种类可以非常灵活,非常多。
因DALI灯具强电为常供电,DALI灯具供电方式可很灵活,现在很多项目Dali智能调光系统只负责提供DALI信号线,DALI灯具的强电供电可有专用的照明配电箱提供;不考虑稳定性、方便检修的话,夸张的做法几百个DALI灯具可以设用一个回路供电;强电配线、配管可以节约很多成本。而可控硅调光系统是不可能这样做的。
基于以上特点,DALI系统可以做到很大,不受如可控硅调光控制器每个回路最大20A的强电接入限制;工程现场施工配管、配线可以大幅度减少,逻辑控制灵活。另外 DALI系统兼容性非常好,可与其他调光系统如可控硅调光系统、DMX512调光系统组合使用,系统组合灵活。
缺点:系统相对复杂,DALI灯具(内置驱动器)、DALI外置灯具驱动器损坏需要更换,物业无法更换,需要专业人员更换,重新编码,系统程序需要重新识别更换的驱动器并重新调整,不像可控硅调光系统物业人员可自己上手干操作。系统维护成本高,DALI灯具、驱动器等造价成本高。
#3DMX512调光系统
1、为何叫DMX512调光系统,DMX和512代表什么?
DMX是Digital Multiplex的缩写,意思是多路数字传输,官名是DMX512-A,一个接口最多能接512个通道,所以从字面上我们可以知道,这个设备是一种带有512个调光通道的数字化传输调光设备。调光原理其实类似于其他的调光系统。
简单来说就是通过编程的程序对相应的通道发送8bit的调光数据,接顺序发给DMX控制器——接受解码器——LED灯具,通过对每个接收端进行编码,类似给他们一个ID,DMX接收端接收DMX信号后,转成模拟量信号驱动LED。DMX控制器发出的信号,接受端是不做任何处理的,下面每个接受端接收到的都是一样的命令,只是接受端各自有不同编码,接受端给到LED的信号快慢不一样,所以LED就可以组合出不同的变化效果,也就是灯接受到命令的时间差来显示灯光的变化。
通常情况下,每个通道对应一台单独灯光装置,通道的数值代表调光等级。比如说,向通道3发送数值127就代表固定装置3的亮度为50%,如果数值是255亮度则是100%。一些复杂单元,实际上会使用多个通道,其数值可代表颜色、位置、还有调光等级。
2、DMX512灯光系统使用场合
在民用建筑中DMX512调光系统最大的应用就是室外泛光照明、室内舞台照明。
3、DMX512灯光系统拓扑图、系统图


灯具弱电控制原理
灯具强电电源系统图4、DMX512调光系统由哪些硬件组成
DMX512调光系统由灯具、灯具变压器、信号接收器、工控机、视频主机等组成。
4.1 DMX512灯具形式多样,可以洗墙灯、线条灯、投光灯,星星灯等种类。类似如下几种:
<<< 左右滑动见更多 >>>
4.2 灯具变压器:室外灯具考虑安全性,都是低压供电的,灯具变压器用于220V电压变压后给灯具提供直流低压电压,一般都在屋面集中设置或灯具附件位置就地设置。

4.3 信号接收器:DIM512灯光系统中用于传输DMX512信号的设备
<<< 左右滑动见更多 >>>
4.4 工控机、视频主机:灯光控制系统核心的处理设备,灯光控制系统软件、系统画面、控制程序存储、操作控制的设备。
<<< 左右滑动见更多 >>>
DMX512灯光系统很多应用场合因调光的要求不高、系统小、调光模式简单,系统设备的组成没有如上那么复杂,也不需要在监控室内集中设置机柜存储众多硬件设备,很多项目应用只需在屋面的配电箱内设置小型的控制主机,灯光控制程序事先编程好存储在SD卡中,SD卡插入屋顶小型的控制主机内来实现灯光系统调光控制。
#4工程实物照片
室外泛光显示画面
监控室与室外同步的显示实时画面
DMX512灯光系统控制机柜
DMX512灯光系统控制主机(采用的上海光联控制系统)
DMX512D灯光控制信号接收器外立面背后集中设置#5其他调光系统
目前市场还存在一些特殊场所应用的智能灯光系统,因应用场合的空间范围小,不需要采用可控硅调光系统或DALI调光系统那么大的系统,犹如大空间的购物中心空调系统需要选用中央空调系统,小空间范围空调选用分体空调就可以满足要求一样。
住宅家庭小空间场所应用的调光系统一般会选用有线布置的智能家居系统,无线布置的Zigbe系统、酒店客房空间采用RCU客房管理系统进行调光,篇幅有限,本次就不做详细介绍,如感兴趣,下期可以专门对智能家居、Zigbe紫蜂、RCU做一个专题的介绍。
以上仅是所有智能照明调光系统最基本介绍,如感兴趣,大家可以自己找一些厂家样本资料、专业书籍进行阅读学习。
最后说明下:以上介绍是根据小编个人工作经历积累及对灯光系统的理解,仅代表个人观点,有不足或错误之处欢迎大家提出并指正。
